1119 E Spring Valley RoadRichardson, TX 75081
Due to the health concerns created by Coronavirus we are offering personal 1-1 online video walkthough tours where possible.




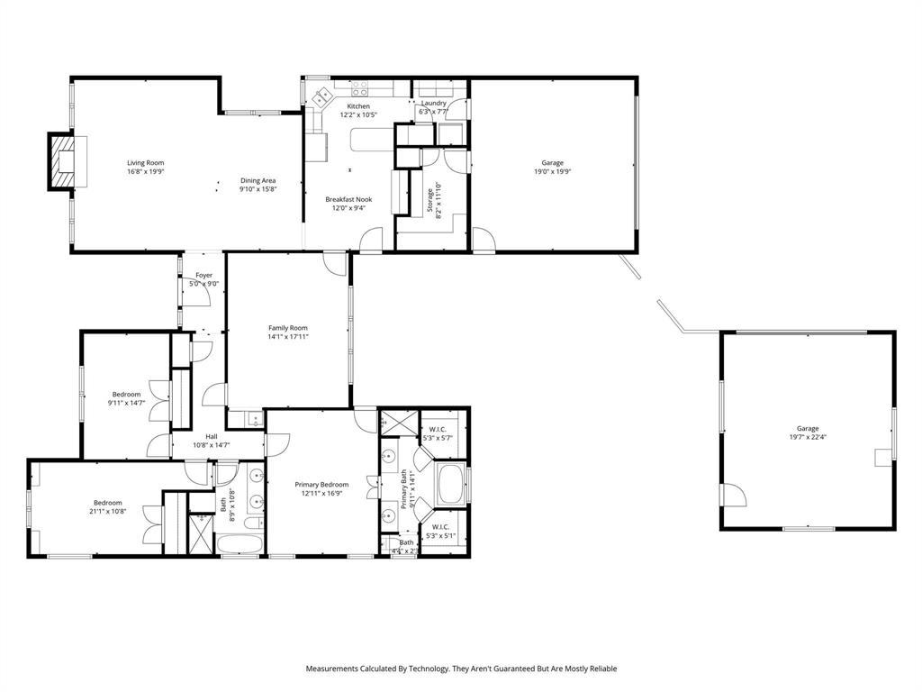
4 GARAGE SPACES + IMMACULATE CARE! Updates include HVAC, roof, water heater, garage door opener, a French drain at the detached garage, and NO popcorn ceilings!. This beautifully maintained 3 bedroom, 2 bath Richardson home sits on a spacious corner lot with green space and walking trail right across the street. Enjoy two garages with a total of 4 covered parking spaces, including a custom built detached garage with heating & cooling, attic storage, a 100 amp panel, and multiple outlets, which makes it perfect for a workshop, studio, or hobby space. The attached 2-car garage includes an 8 x 11 ft storage room with deep built-in shelving. Extra driveway parking accommodates an RV, boat, or additional vehicles. Inside, you’ll find 2,177 sq ft of flexible living space with timeless 1980s charm. The primary bath has been updated, and both bathrooms feature separate tub and shower layouts. The second bath offers hall and bedroom access for convenience. The kitchen and primary suite both open to the covered patio and private backyard, while a bonus room adds flexibility for work or play. Lovingly cared for and ready for your personal touch! Washer, dryer, utility room refrigerator, and spa available for inclusion if desired.
| 4 hours ago | Listing updated with changes from the MLS® | |
| yesterday | Listing first seen on site |
© 2020 North Texas Real Estate Information Systems. All rights reserved. Information is deemed reliable but is not guaranteed accurate by the MLS or NTREIS. The information being provided is for the consumer's personal, non-commercial use, and may not be reproduced, redistributed, or used for any purpose other than to identify prospective properties consumers may be interested in purchasing.
Last checked: 2025-11-06 08:52 PM CST

Did you know? You can invite friends and family to your search. They can join your search, rate and discuss listings with you.